






























Guarda la planimetria
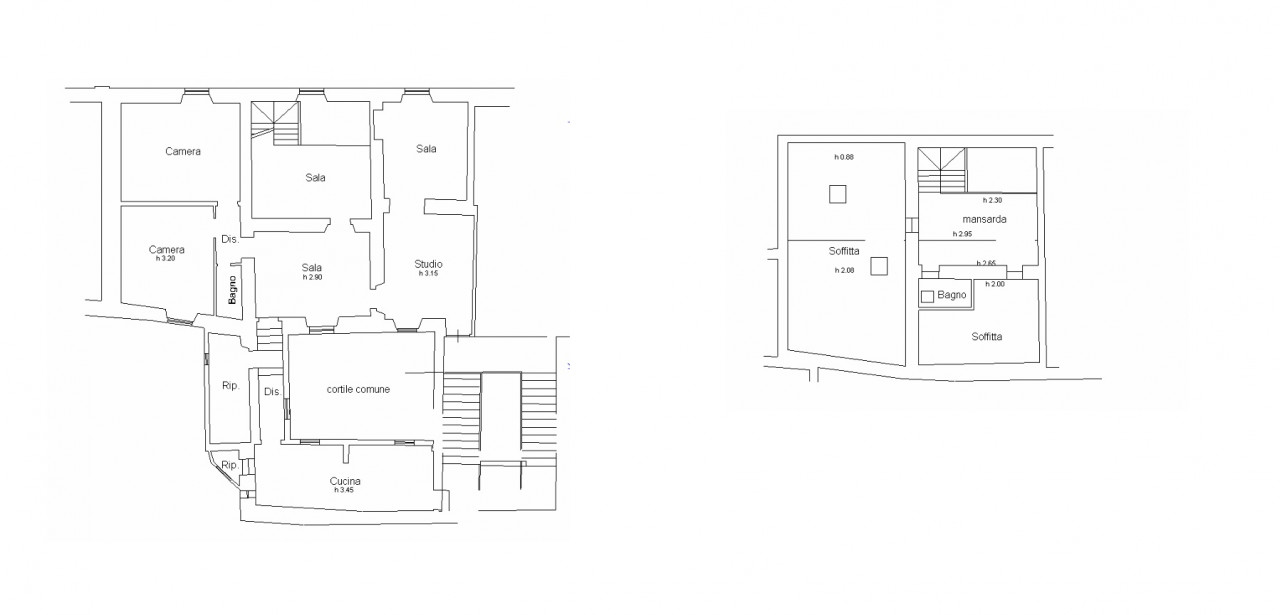
In una palazzina signorile d’epoca, nel cuore pulsante del centro storico di Spoleto, proponiamo un appartamento di circa 240 mq che conserva tutto il carattere della tradizione architettonica umbra.
L’immobile si distingue per le sue finiture d’epoca: soffitti con travi in legno a vista, mattonelle firmate di pregio, finestre fuori standard che garantiscono un’illuminazione naturale di grande impatto scenico e suggestivi livelli sfalsati che conferiscono movimento e carattere agli ambienti.
L’ingresso principale introduce a un ampio disimpegno, dal quale si accede a uno studio riservato e a un doppio soggiorno particolarmente luminoso, dotato di una parte soppalcata e servito da un bagno. La zona notte si compone di due camere matrimoniali e un ulteriore bagno finestrato. La cucina, sviluppata in lunghezza e dotata di caminetto, gode di un ingresso autonomo dall’esterno, utilizzato in altra epoca per il personale domestico. La disposizione interna, razionale ma allo stesso tempo articolata, permette una suddivisione armoniosa tra zona giorno e zona notte.
Gli affacci sono uno dei punti di forza dell’immobile: le ampie finestre si aprono direttamente sul corso principale di Spoleto, regalando scorci affascinanti e un’atmosfera vivace ma riservata.
Una soluzione unica, perfetta per chi cerca una dimora di rappresentanza o un’abitazione di charme nel cuore di una delle città più belle dell’Umbria.
| Titolo | Prezzo | Stato | Tipo | Area | Scopo | Camere da letto | Bagni |
|---|